3000 MDL
Цилиндр MUL-T-LOCK MT5+ (ключ-тумблер)
- Особенности

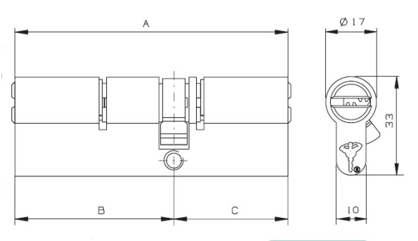
Размеры и симметрии цилиндров, имеющихся в наличии:
Внимание! Тумблер по необходимости может быть как со стороны В, так и со стороны С.
№ | Общая длина, мм А | Симметрия , мм В — С | Количество штифтов, шт |
1 | 54 | 27 — 27 | 7 |
2 | 62 | 37 — 35; 31 — 31 | 7 |
3 | 66 | 31 — 35; 33 — 33 | 7 |
4 | 70 | 35 — 35 | 7 |
5 | 71 | 31 — 40; 33 — 38 | 7 |
6 | 76 | 31 — 45; 33 — 43; 38 — 38 | 7 |
7 | 80 | 35 — 45; 40 — 40 | 7 |
8 | 81 | 31 — 50 | 7 |
9 | 82 | 27 — 55 | 7 |
10 | 85 | 35 — 50; 40 — 45 | 7 |
11 | 90 | 35 — 55; 40 — 50; 45 — 45 | 7 |
12 | 92 | 27 — 65 | 7 |
13 | 95 | 35 — 60; 40 — 55; 45 — 50 | 7 |
14 | 100 | 35 — 65; 40 — 60; 45 — 55; 50 — 50 | 7 |
15 | 105 | 35 — 70; 40 — 65; 45 — 60; 50 — 55 | 7 |
16 | 110 | 40 — 70; 45 — 65; 50 — 60; 55 — 55 | 7 |
17 | 115 | 45 — 70; 50 — 65; 55 — 60 | 7 |
18 | 120 | 50 — 70; 55 — 65; 60 — 60 | 7 |







